Horizon Mold Chain Co., Ltd
Horizon Mold Chain Co., Ltd
Inicio> Noticias del sector> Diseño de un molde de inyección de pared de espesor grande para el parachoques delantero de un automóvil

Diseño de un molde de inyección de pared de espesor grande para el parachoques delantero de un automóvil

2025,06,14
mold4
El parachoques delantero de un automóvil es uno de los componentes exteriores más importantes de un vehículo. No solo necesita tener suficiente fuerza y ​​rigidez, sino que también debería poder actuar como un amortiguador durante una colisión para proteger el cuerpo del vehículo. También debe esforzarse por la armonía y la unidad con la forma general del vehículo y lograr el peso ligero. Para lograr este objetivo, el cuerpo principal del parachoques delantero de los autos modernos ahora está hecho de plástico, comúnmente conocido como parachoques de plástico, que se moldea por inyección con un molde de inyección con una cavidad de molde de inyección.
I. Análisis de la estructura de piezas plásticas
La forma del parachoques delantero del automóvil es similar a una forma de silla de montar, como se muestra en la Figura 1. El material es PP + EPDM-T20, con una tasa de contracción de 0.95%. Entre ellos, PP es el nombre chino para el polipropileno, que es el material principal del parachoques, EPDM es el nombre chino para el caucho de monómero de etileno propileno dieno, que puede mejorar la elasticidad de la cubierta externa del parachoques y T20 se refiere a agregar 20% de polvo de talco al material, que puede aumentar la rigidez de la cubierta exterior del bumper.
Las características de la parte de plástico son:
(1) forma compleja, gran tamaño, espesor de la pared relativamente delgada, perteneciente a una gran parte de plástico de paredes delgadas.
(2) Hay muchos a través de agujeros y costillas de refuerzo en la parte de plástico, y el moldeo por inyección de resistencia al flujo de fusión es grande.
(3) Hay tres ganchos invertidos en el lado interno de la parte de plástico, y el tirar del núcleo lateral de cada uno es bastante difícil.
Diseño de molde de inyección, diseño de molde de inyección de paredes finas grandes para el parachoques delantero del automóvil
Figura 1 Diagrama de estructura del parachoques delantero del automóvil
II. Análisis de la estructura del moho
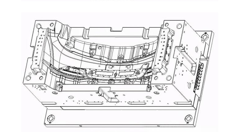
El molde de inyección para el cuerpo principal del parachoques delantero adopta una superficie de separación interna, a través de un corredor caliente, y controlado por una válvula secuencial para la inyección. Los ganchos invertidos en ambos lados adoptan una estructura de manga superior inclinada grande, superior inclinada horizontal más superior recta, con la dimensión externa máxima de 2500 × 1560 × 1790 mm. La estructura del molde se muestra en la Figura 2.
mold3mold2
Figura 2 Diagrama de estructura del molde de inyección del parachoques delantero
1. Placa fija del molde fijo; 2. Placa de rodamiento; 3. Placa de corredor caliente; 4. Anillo de posicionamiento; 5. Boja caliente de primera etapa; 6. Válvula; 7. Aguja de válvula; 8. Boja caliente de segunda etapa; 9. Placa fija de moho en movimiento; 10. Hierro cuadrado; 11. Pusión de la barra de varilla fija; 12. Push Barne Base Plate; 13. Columna de soporte; 14. Columna de guía cuadrada de molde en movimiento; 15. Push Barn; 16. Plantilla de moho en movimiento; 17. Plaza de apoyo; 18. Columna de guía cuadrada de molde fijo; 19. Placa de ojo fija; 20. Varilla de empuje inclinada; 21, 29. Pin; 22, 28. Top inclinada; 23, 34. Guía de riel; 24, 27. Inserto de molde en movimiento; 25, 26. Top recta; 30. Varilla de empuje inclinada; 31, 39. Guardar barra; 32, 33, 40, 41. Columna guía; 35, 36, 37. Push Barn; 38. Bloque de posicionamiento; 42. Bloque resistente al desgaste; 43. Tirador de núcleo lateral; 44. Spring; 45. Bloque limitante
1. Diseño de piezas de formación
El diagrama 3D de este molde se muestra en la Figura 3, y la tecnología avanzada de superficie de separación interna se adoptó en el diseño del molde, como se muestra en la Figura 4. Su ventaja es que las líneas de sujeción de separación están ocultas en la superficie de apariencia no external del parachoques, y no se pueden ver después del ensamblaje en el vehículo, por lo tanto, sin afectar la apariencia. Sin embargo, esta tecnología es más compleja en términos de dificultad y estructura que el parachoques de separación externo, con mayores riesgos técnicos, y el costo y el precio del moho también serán mucho más altos que los del parachoques de separación externa. Sin embargo, debido a su apariencia estética, se usa ampliamente en automóviles de mediana a alta, como se muestra en la Figura 3.
Figura 3 Diagrama tridimensional del molde de inyección del parachoques delantero
Además, esta parte de plástico tiene una gran cantidad de agujeros, y algunos tienen áreas relativamente grandes. El área de colisión está diseñada con ranuras de escape y ranuras de derivación, y el ángulo de inserción es superior a 8 °, lo que puede aumentar la vida útil del molde y reducir la aparición de flash.
Las piezas de formación y la plantilla del molde de inyección del parachoques delantero están integradas, y el material de la plantilla puede ser de inyección de acero de inyección pre-endurecida P20 o 718.
Diseño de molde de inyección, diseño de un gran molde de inyección de paredes delgadas para el parachoques delantero del automóvil-Yojia Figura 4 Sistema de corredores de válvula secuencial de ocho puntos y sistema de enfriamiento
2. Diseño del sistema de vertido
El sistema de vertido de este molde adopta un sistema integrado de corredores de caliente. Sus ventajas incluyen un ensamblaje y desmontaje convenientes, requisitos de precisión de bajo procesamiento, sin riesgo de fuga de pegamento, precisión de ensamblaje confiable y no hay necesidad de desmontaje repetido, mantenimiento y costos de reparación.
El parachoques delantero es un componente exterior. La superficie no debe tener marcas de soldadura. Durante el moldeo por inyección, las marcas de soldadura deben moverse a la superficie de no extrusión o eliminarse. Este es uno de los puntos clave y difícil de este diseño de moho. Este molde adopta la tecnología de control de boquilla de corredor de corredores de válvula secuencial de 8 puntos de 8 puntos, a saber, la tecnología SVG. Esta es otra tecnología avanzada utilizada por este molde. Controla la apertura y el cierre de ocho boquillas calientes a través del accionamiento del cilindro, logrando el efecto ideal de no marcas de soldadura en la superficie de la parte de plástico. La posición de la boquilla de corredor caliente del molde de inyección del parachoques delantero se muestra en la Figura 5.
mold5
Figura 5 Análisis de flujo de moho de inyección para el diseño de un parachoques delantero automotriz
SVG Technology es una nueva tecnología de moldeo de corredores de calientes desarrollados en los últimos años para cumplir con los requisitos de la industria automotriz para piezas de plástico plano grandes y la industria electrónica para piezas de paredes microgueicas. En comparación con la tecnología tradicional de la boquilla de corredor caliente, tiene las siguientes ventajas.
MOLD
① Flujo de fusión estable, presión más uniforme y consistente durante la sostenimiento, un efecto de llenado significativo, una tasa de contracción constante de la parte plástica y una precisión dimensional mejorada;
② puede eliminar las marcas de soldadura o formar marcas de soldadura en la superficie de no extrusión;
③ Reduce la presión de sujeción de moho y el estrés residual de la parte de plástico;
④ Reduce el ciclo de moldeo y mejora la productividad laboral del molde.
La Figura 6 es un gráfico de datos de simulación del control de la boquilla del corredor de caliente por válvula secuencial para la inyección del parachoques delantero automotriz. A través del análisis del flujo de moho, se puede ver que bajo la presión de inyección normal, la fuerza de sujeción de moho y la temperatura del moho, el flujo de fusión es estable y la calidad de la parte plástica es buena, asegurando así la vida útil del moho y la tasa de calificación del producto por completo.
Contal Us

Autor:

Mr. horizonmoldchain

Correo electrónico:

lizifei01@126.com

Phone/WhatsApp:

+86 18575351728

productos populares
También te puede gustar
Categorías relacionadas

Contactar proveedor

Asunto:
Móvil:
Email:
Mensaje:

Su mensaje debe ser de entre 20 a 8,000 caracteres.

We will contact you immediately

Fill in more information so that we can get in touch with you faster

Privacy statement: Your privacy is very important to Us. Our company promises not to disclose your personal information to any external company with out your explicit permission.

Enviar